Sold STC
£445,000

Station Road, Kilgetty, SA68 0AF

  • Ref: HAV250223
  • Availability: Sold STC
  • Bedrooms: 4
  • Bathrooms: 2
  • Reception Rooms: 2
  • Council Tax Band: NA
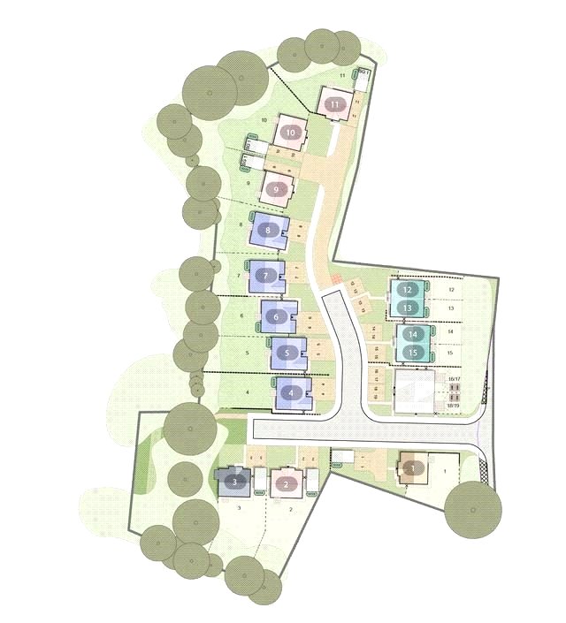
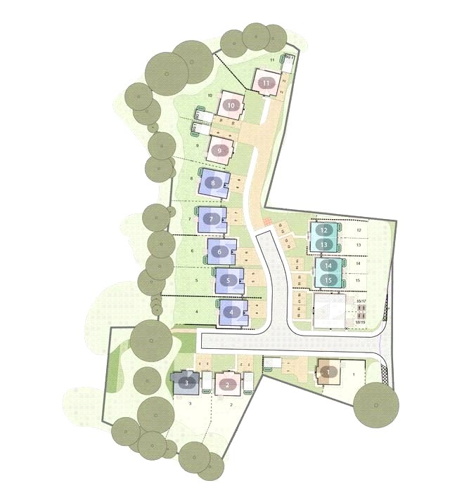
Welcome to Gerddi Rhosyn, Kilgetty – A Brand New, Exclusive Development of 15 Executive Houses by Obsidian Homes. Discover the exceptional lifestyle at Gerddi Rhosyn, a stunning new development ...

Key Features


Full property description


Welcome to Gerddi Rhosyn, Kilgetty – A Brand New, Exclusive Development of 15 Executive Houses by Obsidian Homes. Discover the exceptional lifestyle at Gerddi Rhosyn, a stunning new development offering an exclusive collection of 15 executive homes in the charming village of Kilgetty. With a combination of modern design, superior finishes, and attention to detail, these homes are built to the highest standards, offering the perfect blend of luxury and practicality. Each property also offers integrated solar panels and an EPC rating A. 4, The Windsor – 4 Bedroom property The Windsor blends traditional charm with a contemporary edge, boasting a stunning exterior with cream render, brick with stone accents, and slate grey roof tiles. The double driveway and integrated garage provide ample parking, while the interior emphasizes light, space, and balance. The generous lounge flows into a spacious kitchen and dining area, making it ideal for entertaining friends and family. The dining area opens seamlessly onto the enclosed garden, perfect for those warm summer days when indoor-outdoor living is a must. Upstairs, you’ll find four double bedrooms, including a master bedroom with a private ensuite bathroom, and a family bathroom serving the other rooms. This home offers a fantastic balance of comfort and modern design, making it a superb choice for a growing family. Gerddi Rhosyn offers a rare opportunity to own a luxurious, high-end property in one of Kilgetty’s most sought-after locations. Various house styles are available, Scan the QR code or visit our website for full listing details. Reservations now being taken for homes ready for completion in Spring 2026, now is the time to secure your future dream home at this exclusive development. Don’t miss out on the chance to be part of this prestigious new community – book your viewing and reserve your dream home today!

Lounge: 3.18m x 4.55m

Open Plan Living/Kitchen/Dining: 8.6m x 3.1m

WC:

Master Bedroom: 4.1m x 3.07m

En-suite:

Bedroom 2: 3.66m x 3.07m

Bedroom 3: 4.67m (max) x 3.07m

Bedroom 4: 3.9m x 3.18m

Family Bathroom: 2.18m x 2.18m (max)



floorplan

Get in touch

Tenby
St Julian Street
Tenby
Pembrokeshire
SA70 7AS

Download this property brochure

DOWNLOAD BROCHURE

Try our calculators

Mortgage Calculator

Stamp Duty Calculator

Similar Properties

  • Brooklands Park, Haverfordwest, Pembrokeshire, SA61 1EW

    £490,000 Offers In Excess Of
    Sold STC
    Stunning and spacious, this four-bedroom detached house, constructed in 2001-2002, is located on the outskirts of Haverfordwest, a sought-after and historic market town in Pembrokeshire, Wales. The property exudes a homely and cozy atmosphere, perfect for families seeking a comfortable and well-appo...
    4 Bedrooms
    2 Bathrooms
    2 Receptions
  • Paskeston Lane, Milton, Tenby, Pembrokeshire, SA70 8PN

    £425,000 Offers In The Region Of
    For Sale
    A unique opportunity to acquire this immaculately presented, four bedroom detached home situated in the sought after village of Milton. This property boasts beautiful views over the estuary and surrounding countryside, conveniently situated to village amenities. The present vendors have recently (...
    4 Bedrooms
    2 Bathrooms
    2 Receptions
  • Will Meadows, Freystrop, Haverfordwest, Pembrokeshire, SA62 4AZ

    £495,000
    For Sale
    **** CHAIN FREE BRAND-NEW BUILD LOCATED ON SOUGHT AFTER PRIVATE DEVELOPMENT **** Fbm are the proud marketing agents marking this Stunning Brand-New Home in a Sought-After Private Development on the outskirts of Milford Haven & Haverfordwest. This exceptional chain-free 4 bedroom home offers co...
    4 Bedrooms
    4 Bathrooms
    2 Receptions