For Sale
£45,000

Robert Street, Milford Haven, Pembrokeshire, SA73 2DP

  • Ref: MIL250182
  • Availability: For Sale
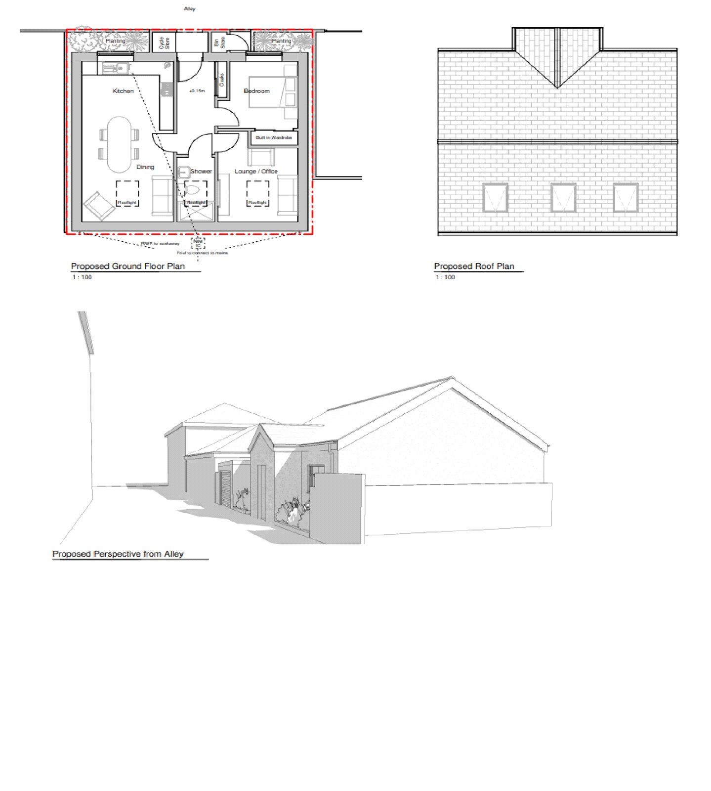
**** BUILDING OPPORTUNITY FOR SALE IN MILFORD HAVEN TOWN CENTRE - PLANNING PERMISSION CONDITIONALLY APPROVED IN APRIL 2025**** Application Reference Number : 24/1188/PA We are pleased to offer a...
VIEWING ENQUIRY

Key Features


Full property description


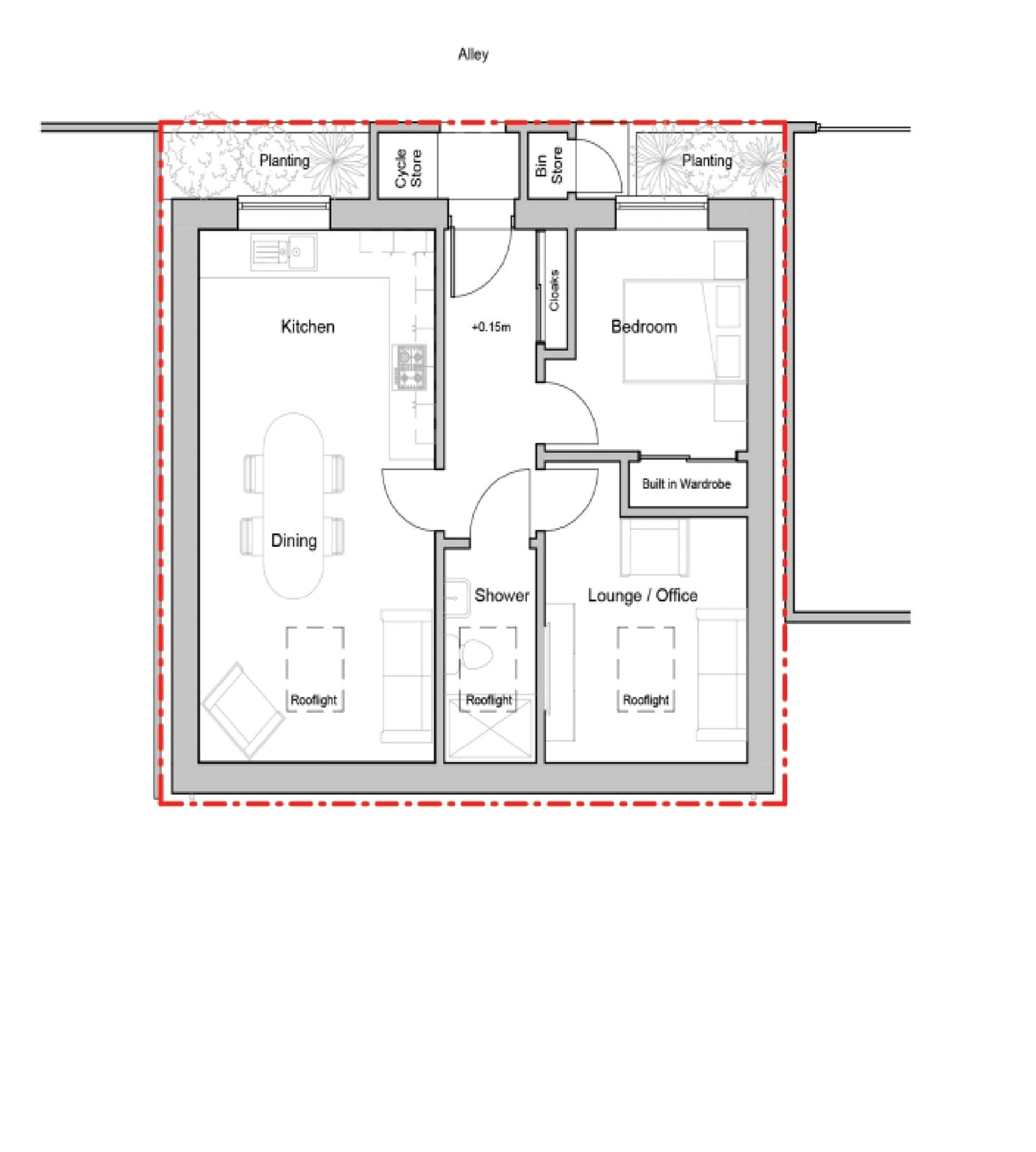
**** BUILDING OPPORTUNITY FOR SALE IN MILFORD HAVEN TOWN CENTRE - PLANNING PERMISSION CONDITIONALLY APPROVED IN APRIL 2025**** Application Reference Number : 24/1188/PA We are pleased to offer an excellent opportunity to purchase a development plot with condition planning permission for a newly built single-storey, one-bedroom dwelling, ideally located in Milford Haven town centre. Planning permission was approved in April 2025. The approved plans propose a well-designed bungalow-style home comprising a spacious open-plan kitchen and dining area, along with a separate lounge that could also be utilised as a second reception room or study. The property also benefits from a family shower room, generous internal and external storage as shown on the plans, and off-road parking spaces to the front. With planning there is a large roof space which has been designed to allow for a further two bedrooms. This is an ideal town-centre opportunity for anyone seeking a low-maintenance, single-level home in a convenient and accessible location. For further information or to arrange a viewing, please contact us today on 01646 698469.



floorplan

Get in touch

Millford Haven
91 Charles Street
Milford Haven
Pembrokeshire
SA73 2HL
BOOK A VIEWING

Download this property brochure

DOWNLOAD BROCHURE

Try our calculators

Mortgage Calculator

Stamp Duty Calculator