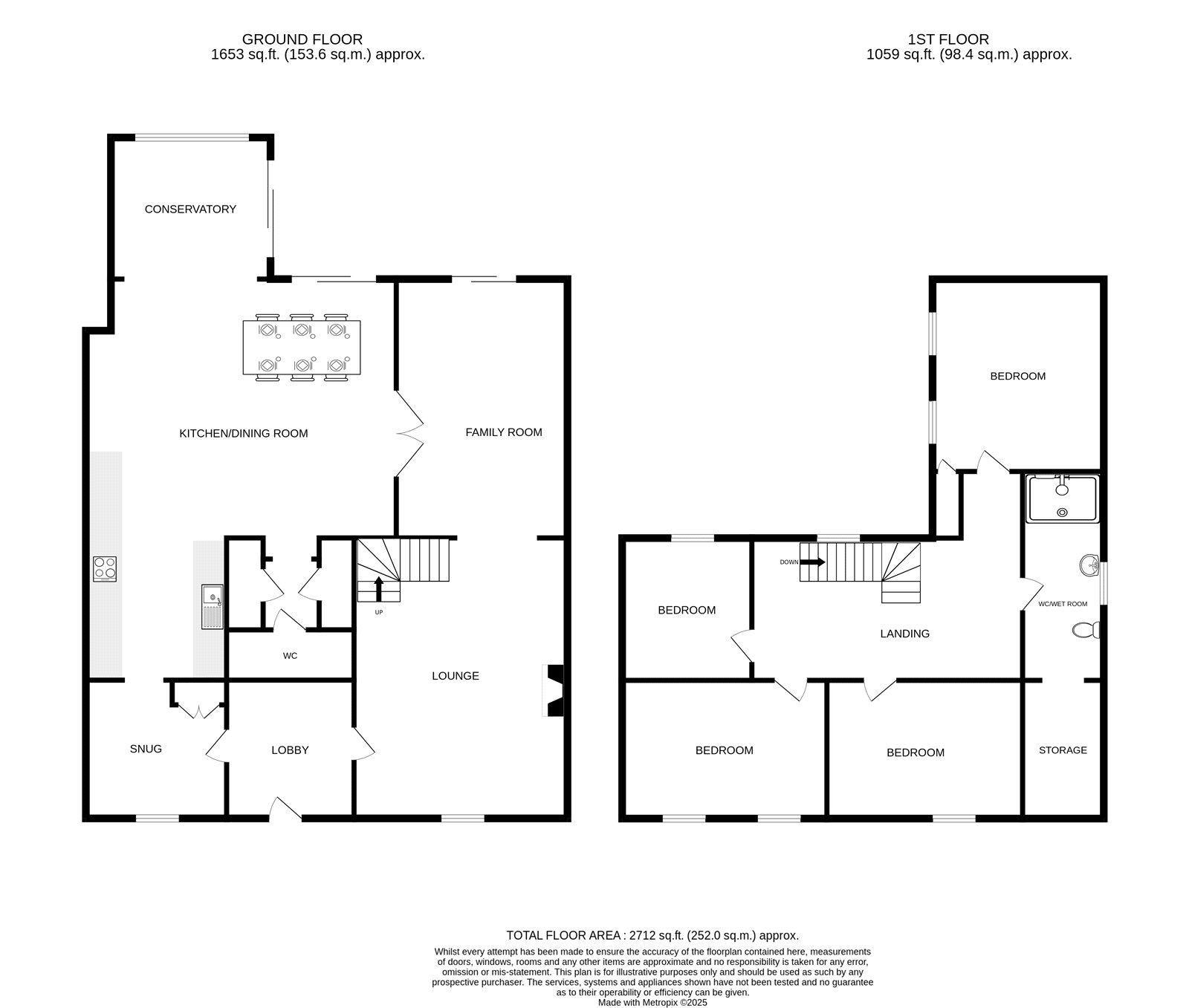
Living Room 3.610m x 4.959m
This charming and spacious reception room offers a warm and inviting atmosphere, perfect for both relaxing and entertaining. The room features a seamless open-plan layout that flows from a cozy living area into a dedicated dining space, linked by an elegant archway.
The living area is a focal point, with a striking exposed chimney breast painted in a rich red, which houses a modern wood-burning stove on a slate hearth. A rustic wooden mantelpiece sits above, complemented by a large framed mirror. The flooring throughout the living space is a beautiful dark wood parquet, adding a touch of classic elegance.
The room is well-lit with recessed lighting and a large window, which is dressed with simple curtains. A comfortable sofa and an armchair offer a perfect place to unwind.
The flow continues to the dining area, which is bright and spacious, with ample room for a large table and chairs. A set of French doors provides easy access to the garden, blending indoor and outdoor living. This versatile space is ideal for family gatherings and dinner parties.
Dining Room 4.107m x 3.279m
This elegant and spacious dining room is perfect for entertaining, with a vibrant and inviting atmosphere. The room features a striking red feature wall, which provides a bold backdrop to the dining area and complements the decorative elements.
A large dining table with seating for six is centrally located, offering ample space for formal meals. The floor is laid with beautiful wood parquet flooring, which adds warmth and character. Natural light streams in from a large window and a set of French doors, which lead into a bright conservatory or sunroom, creating a seamless flow between the spaces.
The room is well-appointed with a piano and a rustic wooden cabinet, showcasing its versatility. This dining room is both a functional and stylish space, ideal for hosting dinner parties and family gatherings.
Snug 2.752m x 3.318m
This versatile snug room offers a cozy and functional space, ideal for a quiet moment of reading or as a welcoming entryway. The room features beautiful dark wood parquet flooring that is both elegant and durable.
One side of the room is dedicated to a charming reading corner, with a comfortable armchair and a tall floor lamp. A large window, adorned with light-filtering blinds and a vibrant pair of curtains, fills the space with natural light.
The other side of the room is lined with a remarkable built-in storage unit, featuring a combination of closed cabinets with classic metal hinges and open shelving above, providing extensive space for books and decorative items. An arched, exposed brick doorway leads directly into the bright and modern kitchen, creating a seamless and inviting flow. This snug is a perfect blend of style and practicality, making it a highly desirable part of the home.
Kitchen Dining Room 2.494m x 6.754m
This spacious and modern kitchen is a bright and welcoming hub, perfect for family life and entertaining. The room features a sleek, contemporary design with light cream-colored shaker-style cabinets and clean white countertops.
The kitchen's most striking feature is the vibrant green glass splashback, which adds a lively pop of color and a modern touch. The room is flooded with natural light from multiple Velux windows in the ceiling, as well as an exposed brick wall, enhancing the sense of space.
The kitchen is well-equipped with integrated appliances and includes a large freestanding range cooker, a sink with a modern faucet, and plenty of storage in the form of cupboards and drawers. The flooring is a warm terracotta tile, providing a rustic contrast to the clean lines of the cabinetry.
The open-plan design connects the kitchen to a versatile dining area with a wooden table, and beyond, to a charming conservatory, creating a seamless and functional living space.
Conservatory 5.226m x 5.300m
This stunning conservatory offers a seamless transition between the indoor and outdoor living spaces, creating a bright and tranquil retreat. The room is flooded with natural light from a skylight and large, floor-to-ceiling sliding glass doors that open onto a patio area.
The space is finished with terracotta floor tiles, which extend from the kitchen, and a striking exposed stone feature wall that adds a rustic, natural element. The room is versatile, serving as both a cozy sitting area and an additional dining space. It's adorned with a variety of lush houseplants, enhancing the garden-like atmosphere.
From the conservatory, you can access the main living area through glass-paned doors and the beautifully landscaped garden via the sliding doors, making it a perfect spot to relax and enjoy the views.
Master Bedroom 4.521m x 2.791m
This tranquil master bedroom offers a cozy and inviting retreat. The room is decorated in a classic style with a neutral color palette, featuring textured white walls and light-colored carpeting that creates a soft and warm atmosphere.
A large window with simple curtains allows natural light to fill the space, and a radiator is conveniently positioned beneath it. The room is comfortably furnished with a double bed, complete with a blue and white patterned duvet, and bedside tables on either side. A large, circular mirror hangs on one wall, adding to the sense of space. Artwork is thoughtfully placed to add a personal touch to the room.
Bathroom 5.361m x 0.163m
This stunning shower room has been beautifully updated with a sleek and modern design. The room is a testament to style and functionality, featuring striking marble-effect tiles that cover the walls, creating a luxurious and clean aesthetic.
The space is equipped with a large, glass-enclosed walk-in shower with a modern showerhead and a low-profile tray. The vanity area is a key feature, with a long, built-in unit that provides extensive storage in a series of white gloss cabinets. A contemporary basin sink is integrated into the countertop, complemented by a large, illuminated mirror that adds both light and a sense of space.
The floor transitions from a warm wood-effect tile to a light tile in the shower area, and a large window provides natural light. This beautifully designed shower room offers a spa-like experience.
Bedroom Two 3.217m x 2.824m
This second bedroom offers a serene and stylish retreat. The room is decorated in a neutral palette with light-colored textured walls and a soft, complementary carpet.
A key feature is the elegant crystal chandelier, which adds a touch of sophistication and provides a central light source. The room is comfortably furnished with a double bed and matching wooden bedside tables and a chest of drawers, offering ample storage space.
A large window with decorative curtains allows natural light to enter the room. This well-appointed bedroom is a perfect guest room or secondary bedroom.
Bedroom Three 2.887m x 2.639m
This bright and cozy single bedroom offers a perfect retreat. The room is decorated in a neutral color palette with lightly textured walls and a soft, complementary carpet.
A notable feature is the stylish crystal chandelier, which adds a touch of elegance to the room. A large window with decorative curtains allows natural light to enter the space. A white built-in wardrobe provides ample storage, and a small, charming bedside table holds a lamp and a vintage-style radio. This well-appointed bedroom is perfect for a child, a guest, or as a small home office.
Bedroom Four 2.081m x 2.719m
External
This delightful tiered garden offers a private and beautifully landscaped outdoor space, perfect for relaxing and al fresco dining. The garden is cleverly designed across multiple levels, creating distinct zones for different uses.
The upper level features a spacious patio area with light-colored paving, providing a clean and modern surface. This area is ideal for outdoor furniture, including a large wooden dining table and chairs, and is perfect for summer barbecues and entertaining. An awning provides shade on sunny days, and a comfortable swing seat is tucked into a corner for a peaceful retreat.
The garden is surrounded by a mix of natural stone and wooden fences, creating a secluded feel. Lush, mature plants and vibrant flowers in planters and raised beds add a burst of color and a natural, serene atmosphere. A set of steps connects the different levels, and a small, lower patio area offers another secluded spot. This well-maintained garden is a true outdoor haven.
Additional Information
Tenure: Freehold
Tax Band: Pembrokeshire County Council; Band C.
Services: Gas central heating, mains electric, water and drainage connected.
What3Words///enter.heat.bats
Viewings: We politely request that all viewings are conducted strictly by appointment with FBM Haverfordwest.
