For Sale
£425,000

Station Road, Kilgetty, SA68 0AF

  • Ref: HAV250225
  • Availability: For Sale
  • Bedrooms: 4
  • Bathrooms: 2
  • Reception Rooms: 2
  • Council Tax Band: NA
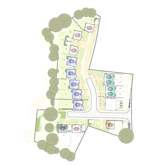
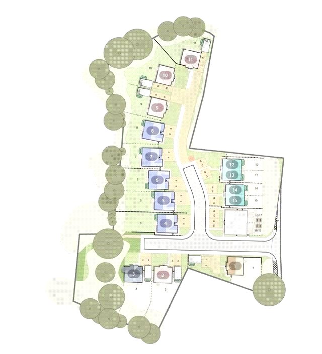
Welcome to Gerddi Rhosyn, Kilgetty – A Brand New, Exclusive Development of 15 Executive Houses by Obsidian Homes. Discover the exceptional lifestyle at Gerddi Rhosyn, a stunning new development ...
VIEWING ENQUIRY

Key Features


Full property description


Welcome to Gerddi Rhosyn, Kilgetty – A Brand New, Exclusive Development of 15 Executive Houses by Obsidian Homes. Discover the exceptional lifestyle at Gerddi Rhosyn, a stunning new development offering an exclusive collection of 15 executive homes in the charming village of Kilgetty. With a combination of modern design, superior finishes, and attention to detail, these homes are built to the highest standards, offering the perfect blend of luxury and practicality. Each property also offers integrated solar panels and an EPC rating A. 8, The Windsor – 4 Bedroom property The Windsor blends traditional charm with a contemporary edge, boasting a stunning exterior with cream render, stone accents, and slate grey roof tiles. The double driveway and integrated garage provide ample parking, while the interior emphasizes light, space, and balance. The generous lounge flows into a spacious kitchen and dining area, making it ideal for entertaining friends and family. The dining area opens seamlessly onto the enclosed garden, perfect for those warm summer days when indoor-outdoor living is a must. Upstairs, you’ll find four double bedrooms, including a master bedroom with a private ensuite bathroom, and a family bathroom serving the other rooms. This home offers a fantastic balance of comfort and modern design, making it a superb choice for a growing family. Gerddi Rhosyn offers a rare opportunity to own a luxurious, high-end property in one of Kilgetty’s most sought-after locations. Various house styles are available, Scan the QR code or visit our website for full listing details. Reservations now being taken for homes ready for completion in Spring 2026, now is the time to secure your future dream home at this exclusive development. 3 Bedroom Homes from £299,950 4 Bedroom Homes from £465,000 Don’t miss out on the chance to be part of this prestigious new community – book your viewing and reservation today!



floorplan

Get in touch

Tenby
St Julian Street
Tenby
Pembrokeshire
SA70 7AS
BOOK A VIEWING

Try our calculators

Mortgage Calculator

Stamp Duty Calculator

Similar Properties

  • Picton Road, Neyland, Milford Haven, Pembrokeshire, SA73 1PX

    £365,000
    For Sale
    Station House is a distinctive Grade II listed former railway residence dating from circa 1857, located at the junction of Picton Road and Station Road in the historic town of Neyland. Originally constructed on the site of the former Stag Inn, the property was built as part of the development of Ne...
    4 Bedrooms
    3 Bathrooms
    3 Receptions
  • Hill Lane, Kilgetty, Pembrokeshire, SA68 0QU

    £465,000
    For Sale
    fbm Tenby are delighted to introduce Topsham Drive to the open market. A spacious detached 4 bedroom property boasting 2 en suite bedrooms and family bathroom. Sat on a large plot the driveway has ample parking for 8 cars whilst the enclosed garden is mostly laid to lawn. The rear of the property ha...
    4 Bedrooms
    3 Bathrooms
    2 Receptions
  • Gerddi Rhosyn, Kilgetty, Pembrokeshire, SA68 0AF

    £425,000
    For Sale
    Welcome to Gerddi Rhosyn, Kilgetty – A Brand New, Exclusive Development of 15 Executive Houses by Obsidian Homes. Discover the exceptional lifestyle at Gerddi Rhosyn, a stunning new development offering an exclusive collection of 15 executive homes in the charming village of Kilgetty. With a c...
    4 Bedrooms
    2 Bathrooms
    2 Receptions