Porch 2.47m x 1.93m
Double-glazed uPVC French doors leading to the front garden, tiled flooring, and two double-glazed uPVC windows within the porch area overlooking the front garden. A single-glazed wooden door provides access into the study area.
Living, Dining, Kitchen 11.26m x 7.52m
Large double-glazed French doors allow for an abundance of natural light, complemented by additional double-glazed windows. The room benefits from laminate flooring throughout and features a large log burner, creating a warm and inviting focal point.
Kitchen
The kitchen comprises a range of wall and base mounted units, along with a central island incorporating a breakfast bar seating area and a feature pendant light above. There is space for a large double fridge and freezer, a sink with vinyl worktops, a large gas cooker, and an extractor fan. A door leads through to the commercial kitchen area, offering excellent versatility for catering or business use.
Study 3.53m x 2.39m
The study area is finished with carpeted flooring. Stairs leading too the upper first floor.
Snug 3.93m x 3.62m,
Carpeted flooring, radiator, and a large double-glazed uPVC window overlooking the front garden, providing plenty of natural light.
Craft Room 4.15m x 2.52m
Carpeted flooring, radiator, and a large double-glazed uPVC window overlooking the front garden, providing plenty of natural light.
Commercial Kitchen 7.27m x 4.4m
Vinyl flooring throughout, double-glazed uPVC windows, a large sink unit, commercial-grade extractor fan, and metal work units. The room also benefits from space and plumbing for a washing machine and tumble dryer.
Wine cellar 3.83m x 3.62m
Vinyl flooring and a large double-glazed uPVC stained glass feature window, creating a distinctive focal point and allowing for ample natural light.
WC (leading into wine cellar) 2.6m6m" x 0.88m
Double-glazed frosted uPVC window, plumbing in place for a WC, aqua panelling, and tiled flooring throughout.
Living Room 5.44m x 5.35m
Laminate flooring, large double-glazed uPVC window overlooking the front garden of the property.
Downstairs Bedroom 3.68m x 2.7m
Laminate flooring, double-glazed uPVC partially glazed French doors leading to the rear of the property, and a double-glazed uPVC window overlooking the back of the property. Located off the dining and living area in the west wing of the property.
WC 2.6m x 0.88m
Double-glazed uPVC window, aqua panelling, vinyl flooring, and plumbing in place for a WC. Located off the dining room of the west wing.
Sun room 6.09m x 3.44m
Large double-glazed uPVC windows overlooking the front garden patio area, laminate flooring throughout, and an additional large double-glazed obscured uPVC window.
Games room 4.03m x 3.55m
Vinyl flooring, with a doorway leading to the family bathroom.
Store room 2.54m x 2.44m
Vinyl flooring, metal shelving for storage and double glazed stone glass feature window.
Kitchen 7.05m x 3.77m
Laminate flooring, a large double-glazed uPVC window overlooking the front of the property, and plumbing facilities in place for a kitchen area.
Family Bathroom 4.24m x 3.78m
Tiled flooring, two WC cubicles, two white sink basins, and double-glazed frosted uPVC windows.
Kitchen 7.08m x 3.77m
Laminate flooring throughout, large double-glazed uPVC windows, and plumbing and electrics in place where kitchen units were previously fitted.
Dining Room 4.03m x 3.55m
Carpeted area, stairs leading to upper first floor, double glazed UPVc windows
Living Room 5m x 3.57m
Carpeted area, stairs leading to upper first floor, double glazed UPVc windows.
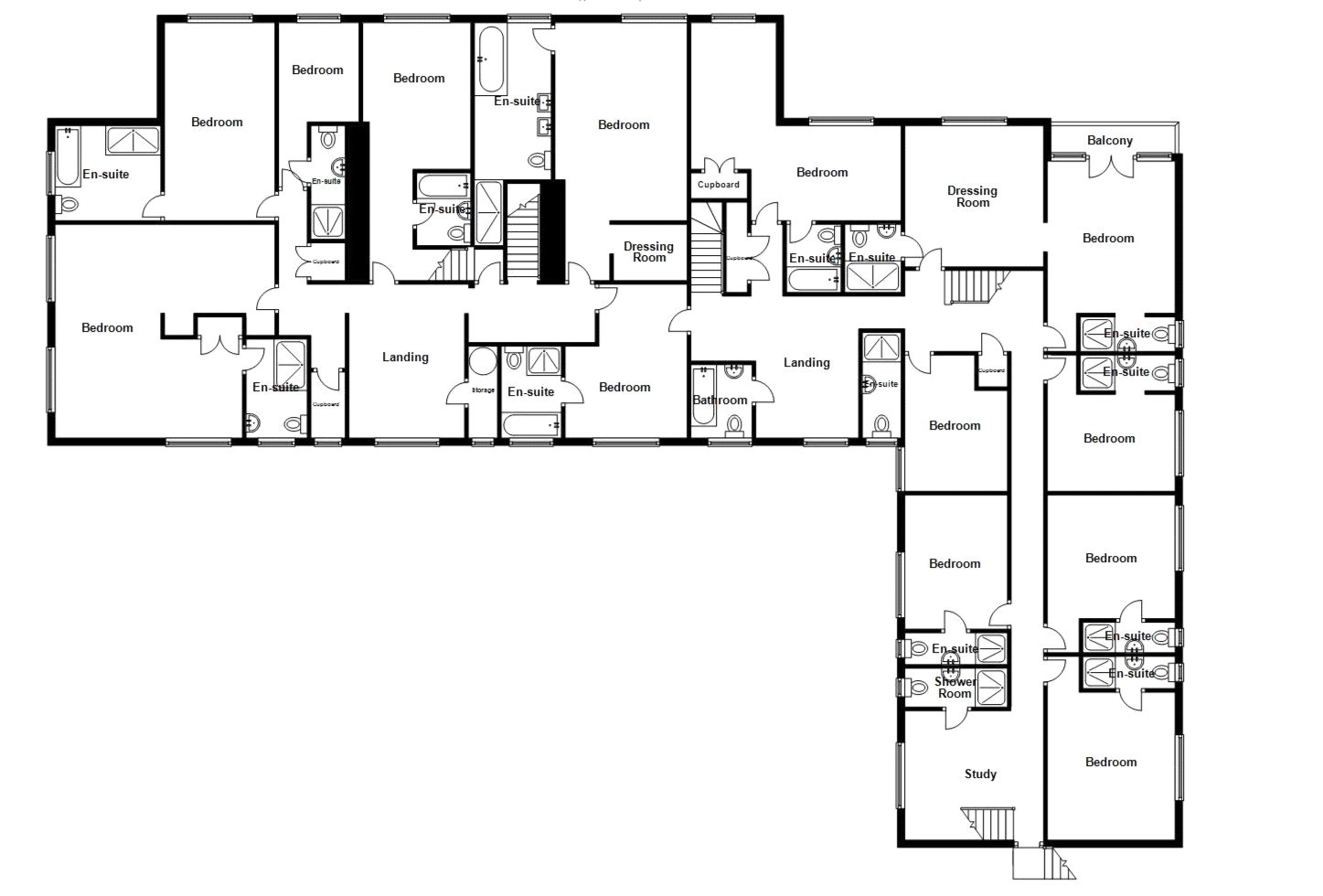
Master bedroom 6.98m x 3.90m
The room benefits from a double glazed UPVC window, carpeted flooring and an attractive wood-panelled feature wall, with a door providing access to the master bedroom en suite. The master bedroom also features a dressing room which features tiled flooring and fitted clothing rails offering ample hanging space.
Master Bedroom Ensuite 4.29m x 2.37m
A spacious bathroom featuring a his and hers double vanity unit, bath, fully tiled shower enclosure with glass screen, heated towel rail, tiled flooring and a double glazed UPVC obscured window.
Bedroom One 2.81m x 0.82m
Carpeted flooring, double glazed UPVC window, enjoying views over the front garden of the property.
Bedroom One Ensuite 2.99m x 0.82m
Aqua panelling, vinyl flooring, shower enclosure, WC and wash hand basin.
Bedroom Two 4.05m x 3.12m
The room features carpeted flooring and a double glazed UPVC window overlooking the rear grounds of the property.
Bedroom Two Ensuite 2.36m x 1.56m
The bathroom features aqua panelling, vinyl flooring, a shower over the bath, WC and a sink with basin unit.
Bedroom Three 5.78m x 5.13m
Three double glazed UPVC windows, carpeted flooring, a built-in storage cupboard, and a door leading to the en suite.
Bedroom Three Ensuite 2.64m x 1.67m
The bathroom features aqua panelling, a WC, sink with basin, and a fully tiled shower enclosure.
Bedroom Four 5.44m x 2.57m
The room features carpeted flooring and a large double glazed UPVC window with views over the front garden of the property.
Bedroom Four Ensuite 2.62m x 2.56m
The bathroom features vinyl flooring, aqua panelling, a shower enclosure, WC, sink with basin, and an obscured double glazed UPVC window providing privacy.
Bedroom Five 7.0m x 2.94m
Carpeted flooring and a double glazed UPVC window overlooking the front garden.
Bedroom Five Ensuite 1.88m x 1.38m
Aqua panelling, vinyl flooring, shower over bath, WC and wash hand basin.
Bedroom Six 5.83m x 4.14m
Carpeted flooring, double glazed UPVC window overlooking the front garden, and built-in storage cupboard.
Bedroom Six Ensuite 1.74m x 1.43m
Aqua panelling, shower over bath, vinyl flooring, WC, and wash hand basin.
Dressing Room 3.77m x 3.75m
Carpeted flooring and a double glazed UPVC window overlooking the front garden.
Bedroom Seven 3.95m x 3.45m
Double glazed UPVC French doors leading onto a balcony overlooking the front garden, with carpeted flooring.
Bedroom Seven Ensuite 2.49m x 0.88m
Fitted with aqua-panelled walls, vinyl flooring, WC, wash hand basin and shower tray.
Bedroom Eight 3.74m x 2.84m
Carpeted flooring and a double glazed UPVC window overlooking the rear of the property.
Bedroom Eight Ensuite 2.68m x 0.83m
Fitted with aqua-panelled walls, vinyl flooring, WC, wash hand basin and shower tray.
Bedroom Nine 3.43m x 2.83m
Carpeted flooring and a double glazed UPVC window overlooking the side of the property.
Bedroom Nine Ensuite 2.45m x 0.87m
Aqua panelling, vinyl flooring, shower tray, WC, and wash hand basin.
Bedroom Ten 3.58m x 3.22m
Carpeted flooring and a double glazed UPVC window overlooking the side of the property.
Bedroom Ten Ensuite 2.63m x 0.88m
Aqua panelling, vinyl flooring, shower tray, WC, and wash hand basin.
Bedroom Eleven 3.98m x 3.57m
Carpeted flooring and a double glazed UPVC window overlooking the side aspect of the property.
Bedroom Eleven Ensuite 2.64m x 0.88m
Aqua panelling to the walls, vinyl flooring, shower tray, WC and wash hand basin.
Bedroom Tweleve 3.68m x 2.95m
Carpeted throughout, featuring a double glazed UPVC window with views over the rear of the property.
Bedroom Tweleve Ensuite 2.60m x 0.88m
Fitted with aqua-panelled walls, vinyl flooring, WC, wash hand basin and shower tray.
Study / Bedroom Thirteen 3.58m x 3.2m
Carpeted throughout, featuring a double glazed UPVC window enjoying views over the rear aspect of the property. Stairs leading too second floor.
Bedroom Thirteen Ensuite 3.32m x 0.88
Fully fitted with aqua-panelled walls, vinyl flooring, shower tray, WC and wash hand basin.
Bedroom Fourteen 5.34m x 3.63m
Carpeted throughout, three integrated storage cupboards, and a double glazed UPVC window overlooking the side aspect of the property.
Bedroom Fourteen Ensuite 2.37m x 1.62m
Aqua panelling, vinyl flooring, shower enclosure, bath, WC, wash hand basin, and a double glazed UPVC window overlooking the front garden.
Bedroom Fifteen 6.07m x 3.1m
Carpeted throughout, with two double glazed UPVC windows overlooking the front garden.
Bedroom Sixteen 6.06m x 3.10m
Carpeted throughout, with double glazed UPVC window overlooking the front garden.
Bedroom Sixteen Ensuite 3.70m x 2.04m
Partially tiled walls, bath with shower attachment, WC, wash hand basin, vinyl flooring, and a double glazed window overlooking the front garden aspect.
